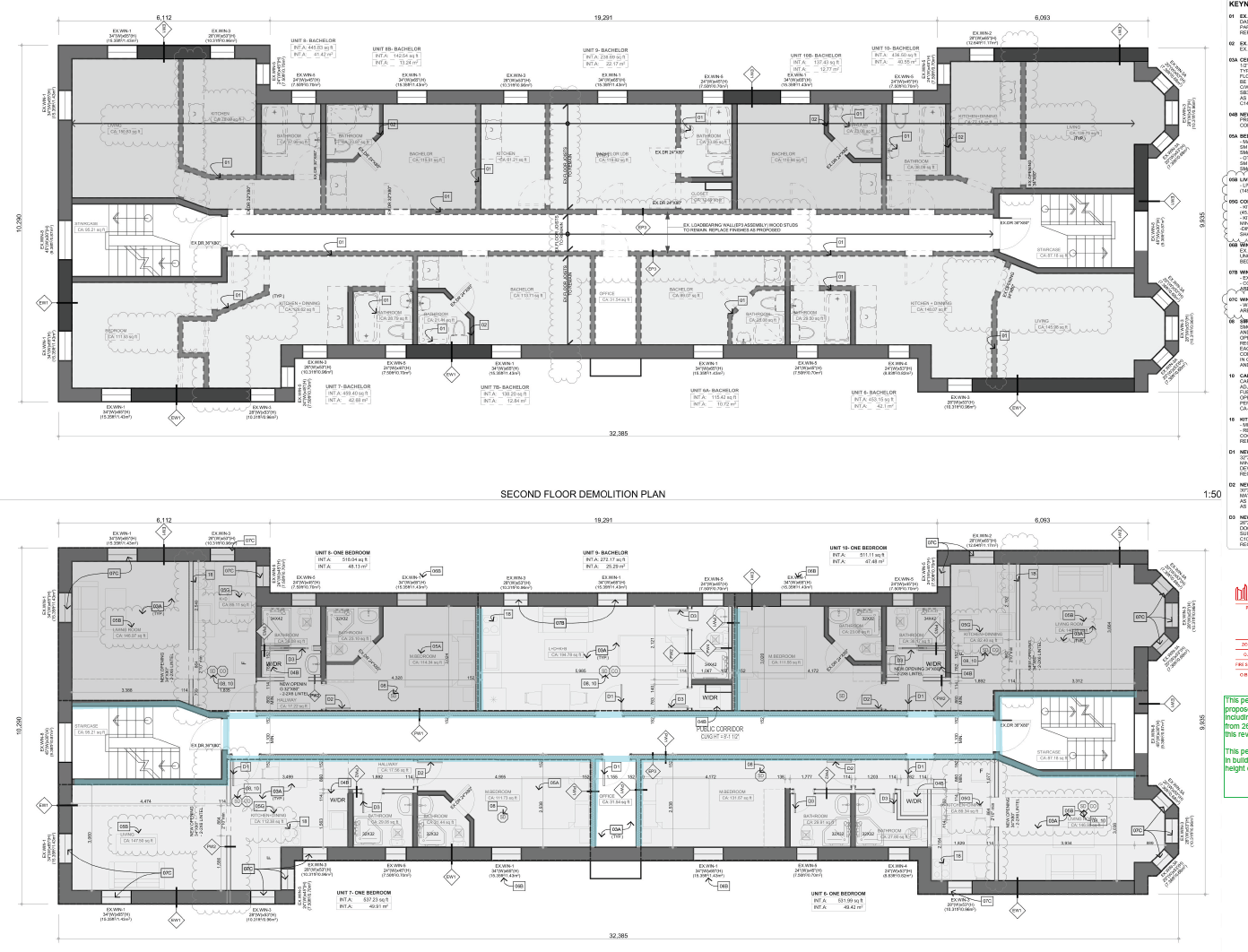
MURB Retrofit Energy Roadmap

We help multi-unit residential building owners plan the right upgrade path—baseline, scenario comparison, and a practical retrofit roadmap that supports CMHC MLI Select financing decisions.

  • Establish a clear baseline of current building performance
  • Compare 2–4 upgrade bundles using consistent assumptions
  • Identify which upgrades deliver the biggest impact—and in what order
  • Package results into a financing-ready summary aligned with MLI Select
  • Define clear next steps for design, pricing, and phased execution

What You Get -Roadmap, Not Just a Report

  • A clear baseline of current performance
  • 2–4 upgrade bundles compared on the same assumptions
  • A prioritized retrofit roadmap (what to do first, next, later)
  • A “financing-ready” summary package aligned to MLI Select
  • Follow-up call to confirm next steps

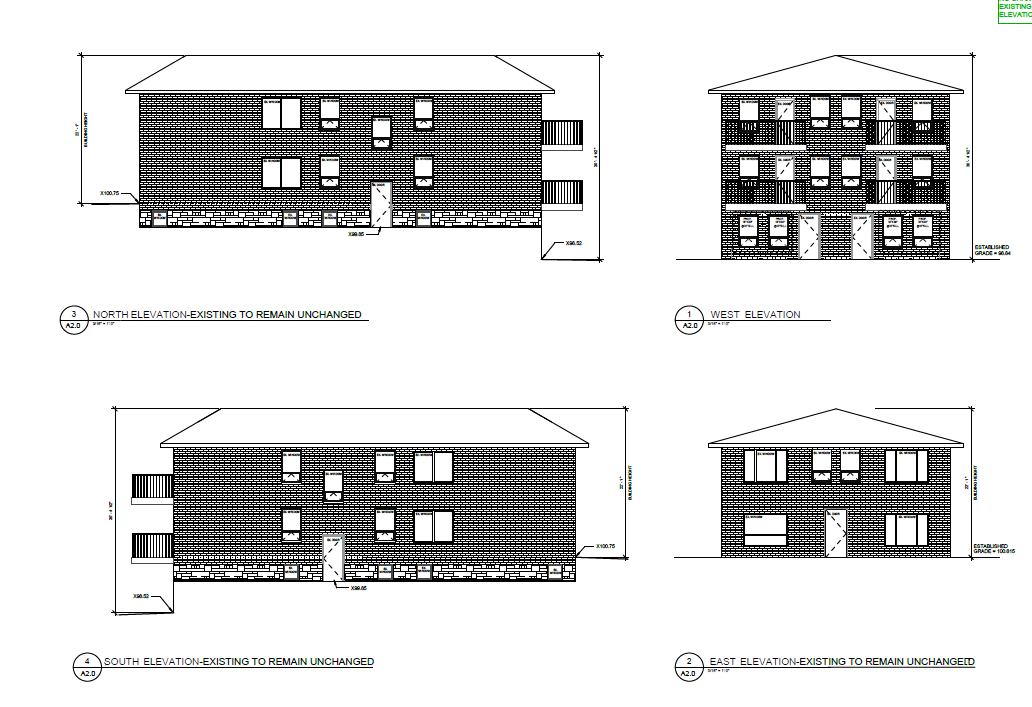
Baseline

Confirm building facts + current systems and constraints.

Scenarios

Compare upgrade bundles and their impact on energy + GHG.

Roadmap

Sequence upgrades and define the next actions for design, quotes, and financing.

Your MURB Retrofit Roadmap

This roadmap is not a theoretical study. It is a decision tool designed to help MURB owners move from uncertainty to clear, staged actions—before engaging engineers, contractors, or financing.

 

  • Clarifies which upgrades are worth advancing—and which to defer
  • Shows how individual measures work together as a phased plan
  • Supports internal decision-making before design or tendering
  • Aligns technical findings with financing and timing considerations
  • Creates a clear starting point for consultants, lenders, and installers
Multi-family low rise

Start Your Retrofit Roadmap

Share a few basics. We’ll confirm scope and propose the fastest path to a finance-ready retrofit plan.
Pinewoods Hill Eco Solution Logo - Dark Background

Assessment-led energy upgrade support for multi-unit buildings

Decision & Assessment

Energy Solution

Copyright © 2025 Pinewoods Hill Eco Solution. All Rights reserved.